Bloeme - weide ong

7448 PX Haarle
Prijs op aanvraag
Bouwjaar
2025
Perceeloppervlakte
2.450 m2
Oppervlakte
140 m2
Beschrijving

*** VERKOCHT ***

Welkom bij het Bedrijfsverzamelgebouw: "Bloeme-weide"

Uw toekomstige Bedrijfsruimte in Haarle!

BLM Vastgoed, VAB Architecten & BALTES Makelaars presenteren met trots de verkoop van 10 nieuw te bouwen bedrijfsunits in het moderne en representatieve gebouw "Bloeme-weide", gelegen op het dynamische industrieterrein ‘Bloeme-weide’ in Haarle, gemeente Hellendoorn. Deze unieke kans biedt u de mogelijkheid om een hoogwaardige bedrijfsruimte te verwerven die perfect aansluit bij de behoeften van uw onderneming.

Specifieke kenmerken van de Bedrijfsunits:

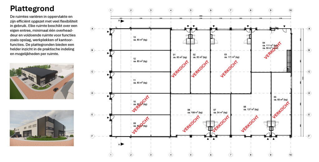
- Variabele grootte: De units variëren van 82 tot 330 m², met (de optie voor) een verdieping, waardoor u de ruimte kunt optimaliseren.
- Hoogwaardige afwerking: elke unit wordt gekenmerkt door een uitstekende afwerking die professionaliteit en stijl uitstraalt.
- Natuurlijke verlichting: Dankzij de glazen puien geniet u van overvloedig daglicht, wat een inspirerende werkomgeving creëert.
- Eigen parkeerplaatsen: iedere unit beschikt over eigen parkeerplaatsen, wat gemak biedt voor u en uw klanten.
- Duurzaamheid en groen: Het terrein is ontworpen met veel aandacht voor groen, inclusief biodiversiteit en een bijenhotel, waardoor een gezonde werkomgeving ontstaat.
- Zonder Vereniging van Eigenaren: U heeft volledige vrijheid en controle over uw bedrijfsruimte zonder de lasten van een vereniging (wél collectieve opstalverzekering)
- Flexibiliteit: De units kunnen eenvoudig worden gekoppeld, zodat u de ruimte kunt aanpassen aan uw groeiende zakelijke behoeften.
- Ruime overheaddeur: Voor eenvoudig in- en uitladen van goederen, is er een ruime (elektrische) overheaddeur aanwezig.

Toegankelijkheid:
Gelegen nabij de N35, dus zijn de bedrijfsunits zeer goed bereikbaar. Dit zorgt ervoor dat u en uw klanten met gemak toegang hebben tot uw onderneming.

Kom in actie!
Wacht niet langer en ontdek de mogelijkheden die "Bloeme-weide" uw bedrijf kan bieden. Voor meer informatie, bezichtigingen of het maken van een afspraak, neem contact op met BALTES Makelaars.

Uw droomlocatie wacht op U!

Dit is dé gelegenheid om uw bedrijf te vestigen in een innovatieve en inspirerende omgeving.
Mis deze kans niet!

Lees verder
Overdracht
Status
Verkocht o.v.
Prijs
Prijs op aanvraag
Aanvaarding
In overleg
Bouwvorm
Bouwvorm
Bestaande bouw
Bouwjaar
2025
Bouwjaar toelichting
Indeling
Soort Object
Bedrijfsruimte
Totale oppervlakte
140 m2
Perceeloppervlakte
2.450 m2
Oppervlakte bedrijfsruimte
140 m2
Overig
In units vanaf
82 m² bedrijfsruimte
Locatie
BEDRIJVENTERREIN
Toon meer kenmerken

Geïnteresseerd in dit bedrijfspand?